
Our Theater for conferences, lectures and seated concerts.
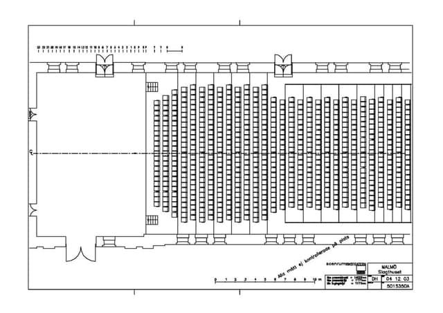
The Theatre is our largest room with permanent seating, 921 comfortable chairs and amazing acoustics!
The sloping tiered seating and large stage provide perfect conditions for focused guests at lectures and conferences. For groups of 200-600 people, the venue can be divided with a partition wall.
The stage is very spacious, 12x16 meters, and is suitable for large productions and concerts, as well as smaller meetings and lectures, where you can choose to only use the front part of the stage.
Since 1991, numerous concerts, theater performances, and musicals have taken place here.
Backstage there are four dressing rooms with room for up to 20 people. Entrance from Navigationsgatan 4 for audience, and from Navigationsgatan 2 for load-in.
















Interested in this venue? Contact us!

Cinema
921/600